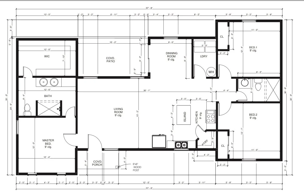
Woodland Floor Plan

The Woodland offers 1,609 square feet of well‑designed living space built for both comfort and everyday usability. This four‑bedroom, two‑bath layout strikes a strong balance between private rooms and shared living areas, giving you flexibility for family life, guests, or dedicated work‑from‑home space without wasting square footage. The flow from room to room feels natural and intentional, making daily routines and hosting alike feel easy rather than awkward. 
Bedrooms are sized thoughtfully to serve as restful retreats, while the common areas like the kitchen, living, and dining spaces are placed to support interaction and openness. Thoughtful transitions and good natural light help the home feel open and welcoming throughout, making the most of every square foot. With its practical layout and adaptable design, the Woodland floor plan delivers comfort and functionality in a footprint that’s efficient without feeling tight.
Previous
Previous

Prairie Floor Plan

Next
Next

Longhorn Floor Plan