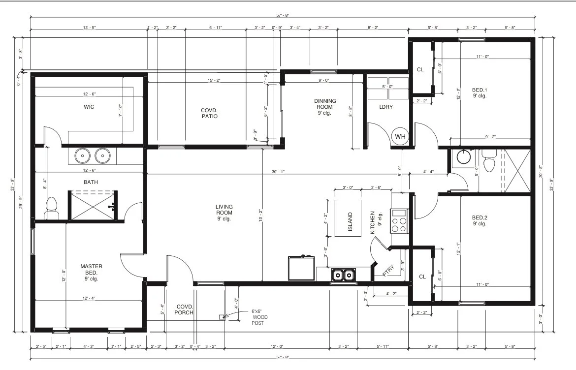
Prairie Floor Plan

The Prairie is a thoughtfully designed home offering 1,609 square feet of comfortable living space. This four‑bedroom, two‑bath plan blends efficient layout and everyday functionality, making it a great choice for families and homeowners who want smart use of space without feeling cramped. From the moment you step inside, the plan emphasizes intuitive feel rather than an overly disjointed feel.
Bedrooms are arranged to provide personal retreat space while still keeping the home connected and liveable. Shared areas like the living room, kitchen, and dining spaces are sized to accommodate both everyday gatherings and larger get‑togethers with minimal fuss. Thoughtful transitions and a well‑balanced layout help bring in natural light and make the Prairie feel open and inviting throughout. With its practical footprint and versatile design, this plan proves that smart space planning can deliver comfort and functionality in a mid‑sized home.

Previous
Previous

Wildflower Floor Plan

Next
Next

Woodland Floor Plan