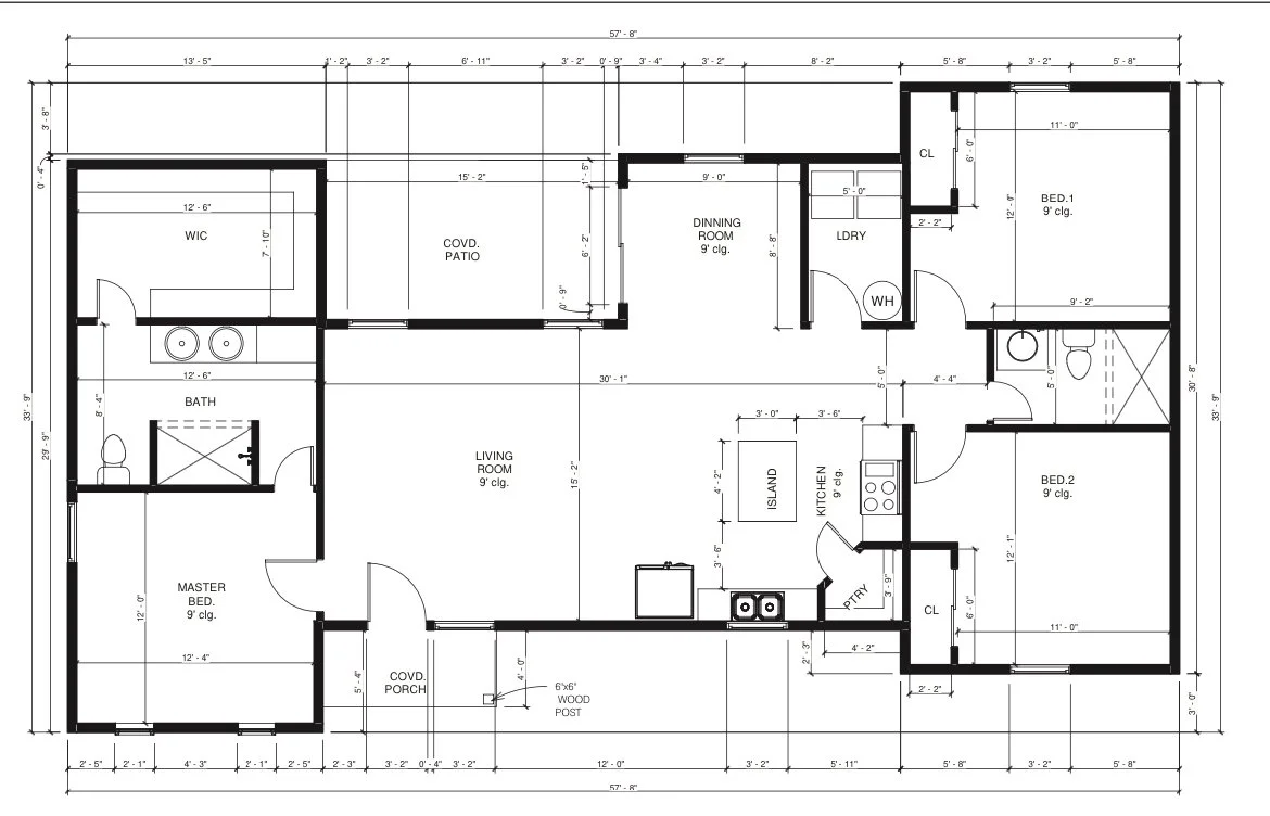
Longhorn Floor Plan

The Longhorn offers 1,609 square feet of thoughtfully arranged living space designed for both everyday comfort and functional flow. This four‑bedroom, two‑bath plan makes smart use of its footprint, balancing private spaces with shared areas so that daily life feels easy and organized without wasted square footage. From the welcoming common areas to the quieter bedroom zones, the layout supports both family living and hosting with a sense of openness and practicality. 
Bedrooms are sized to provide personal retreat space, adaptable to rest, work, or hobbies, while the living, kitchen, and dining areas are set up to encourage interaction and natural movement throughout the home. Well‑placed transitions and an emphasis on natural light help make the Longhorn feel comfortable and inviting from front door to back. With its efficient design and versatile spaces, this plan delivers a blend of comfort, functionality, and livability in a mid‑sized home.
Previous
Previous

Woodland Floor Plan

Next
Next

Horizon Floor Plan