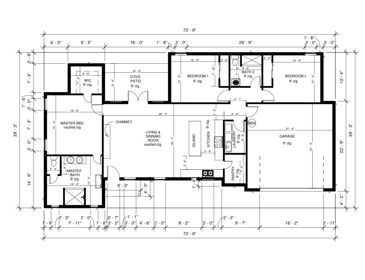
The Sandstone Floor Plan

The Sandstone is a smartly designed home offering 2,537 square feet of thoughtfully arranged living space. With a balance of private and shared areas, this plan caters to everyday life as much as weekend gatherings. The layout includes multiple well‑proportioned rooms that give you flexibility for family living, guests, or work‑from‑home zones, all while maintaining a cohesive and functional flow throughout the home. 
Bedrooms are sized to offer personal comfort without wasted square footage, and common areas like the living room and kitchen provide a welcoming backdrop for everyday life and entertaining alike. Natural light, thoughtful transitions between spaces, and an efficient footprint make the Sandstone a versatile choice for anyone seeking both practicality and comfort in a mid‑sized home.
Previous
Previous

Wagonwheel Floor Plan

Next
Next

Frontier Floor Plan