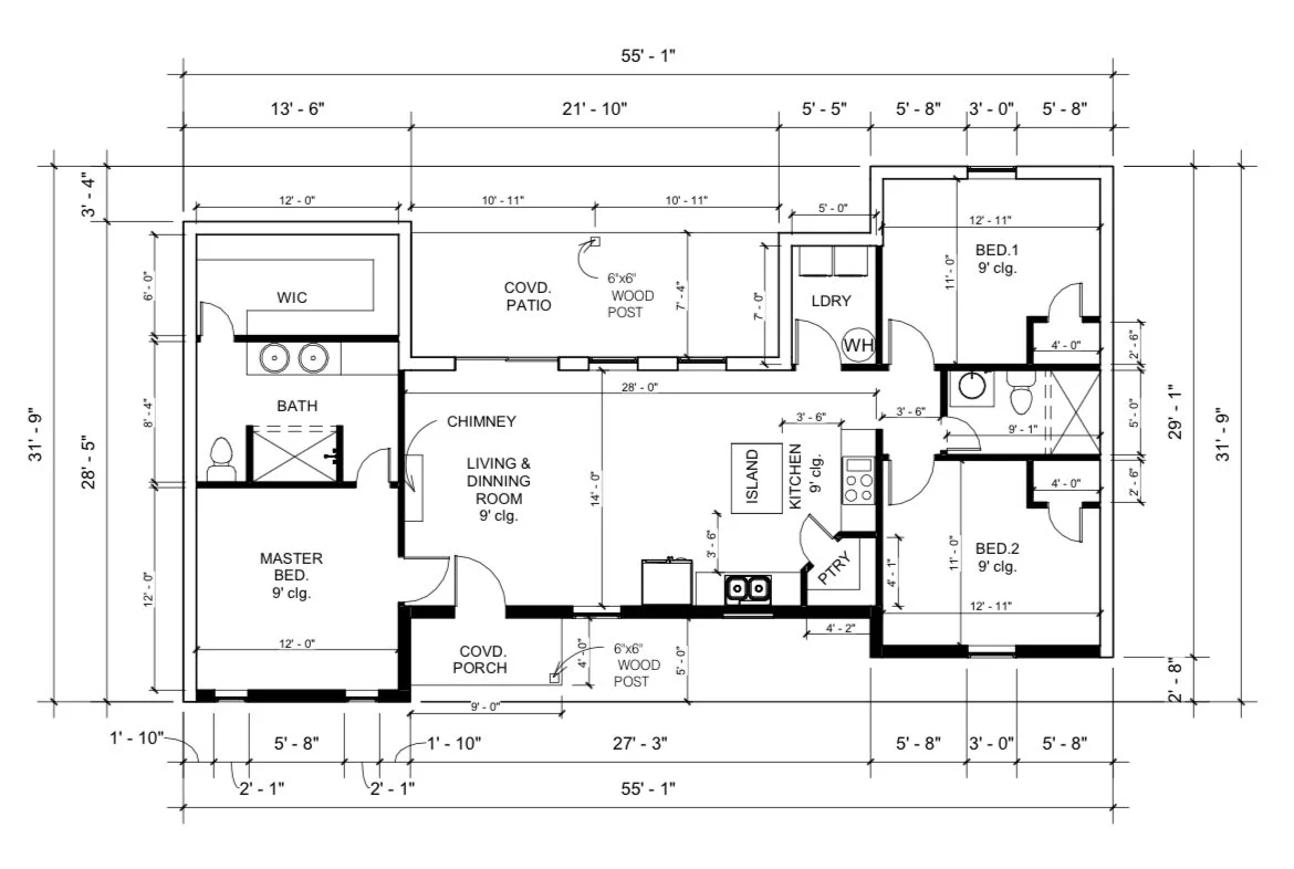
The Frontier Floor Plan

The Frontier offers a thoughtfully designed 1,460 square feet of living space built for comfort and everyday functionality. This plan strikes a balance between efficient use of space and a welcoming feel, with well‑configured rooms that make daily living easy without sacrificing style or flow. The layout allows for private areas that are comfortably sized and shared spaces that feel connected and open.
Bedrooms are designed to give you personal retreat space, whether it’s for family members, guests, or a home office, while the living areas and kitchen are arranged to support natural movement and interaction throughout the home. With its practical footprint and intelligently planned layout, the Frontier is a solid choice for those who want a comfortable, efficient home that doesn’t feel cramped or overextended.
Previous
Previous

Sandstone Floor Plan

Next
Next

Wildflower Floor Plan