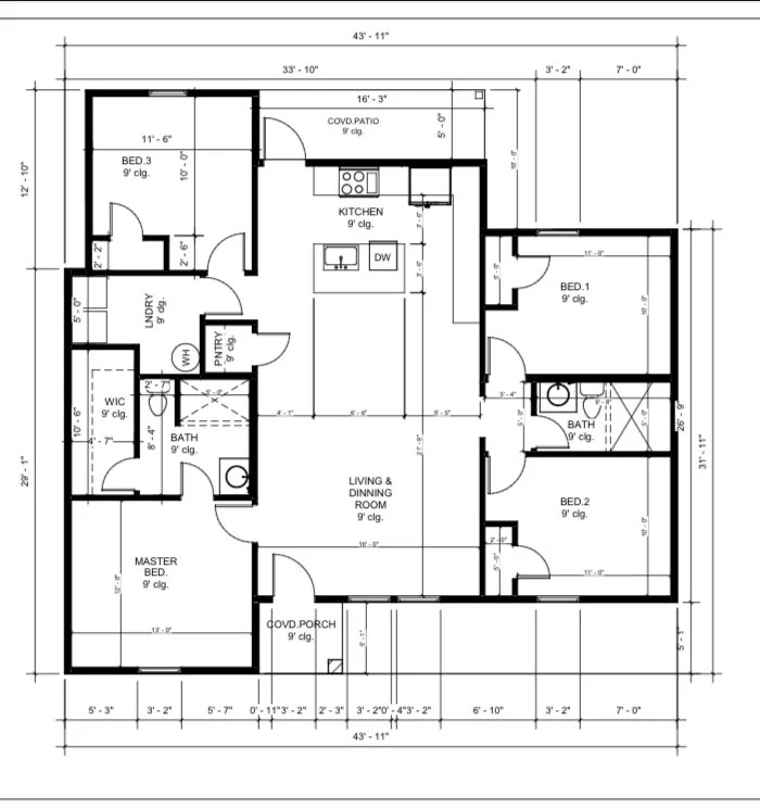
Ironwood Floor Plan

The Ironwood offers 1,549 square feet of modern yet natural living space, combining sleek design elements with a warm, inviting atmosphere. This four‑bedroom, two‑bath layout balances private bedrooms with open, functional common areas, making it ideal for families, entertaining, or flexible work-from-home setups. The flow between rooms is intuitive, allowing everyday routines and gatherings to feel effortless.
Each bedroom provides a comfortable retreat, while shared spaces like the living room, dining area, and kitchen are designed to feel open and connected. Thoughtful transitions, natural light, and a harmonious blend of modern touches with organic finishes give the Ironwood a contemporary feel without losing warmth or character. With its efficient footprint and adaptable design, the Ironwood floor plan delivers both style and livability in a compact, functional home.
Previous
Previous

Trailblazer Floor Plan