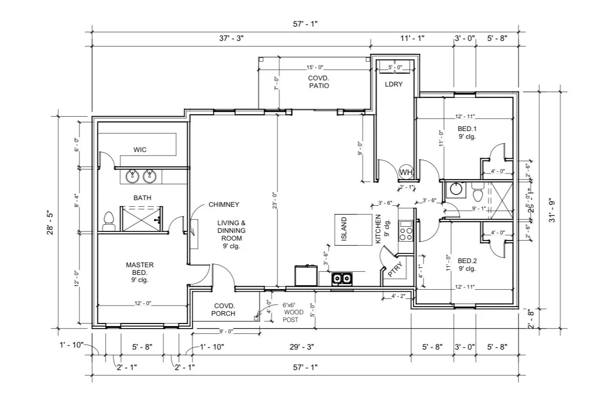
Bluestem Floor Plan

The Bluestem offers a 1690 square feet of thoughtfully designed living space that blends comfort, flexibility, and practical flow. With four bedrooms and two bathrooms, this layout is built for everyday living as well as hosting friends and family. The well‑balanced floor plan creates a natural transition between shared living areas and private retreats, making it both functional and welcoming.
Each bedroom is sized to provide personal comfort and adaptability, whether used for rest, work, or guests. Shared spaces like the kitchen, living room, and dining areas are arranged to support easy movement and connection throughout the home, with an emphasis on openness and adaptability. Thoughtful room placement and efficient use of space help bring in natural light and make the Bluestem feel roomy and inviting from front door to back. With its combination of practical design and livable comfort, this plan delivers versatile space that adapts to your lifestyle.
Previous
Previous

Redhawk Floor Plan

Next
Next

Trailblazer Floor Plan